701 KINGSWAY
BY QUALEX

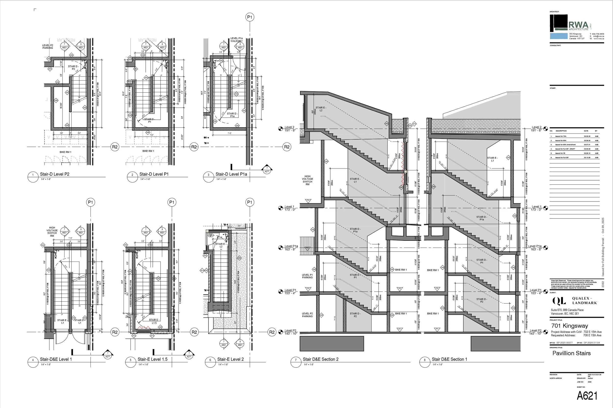
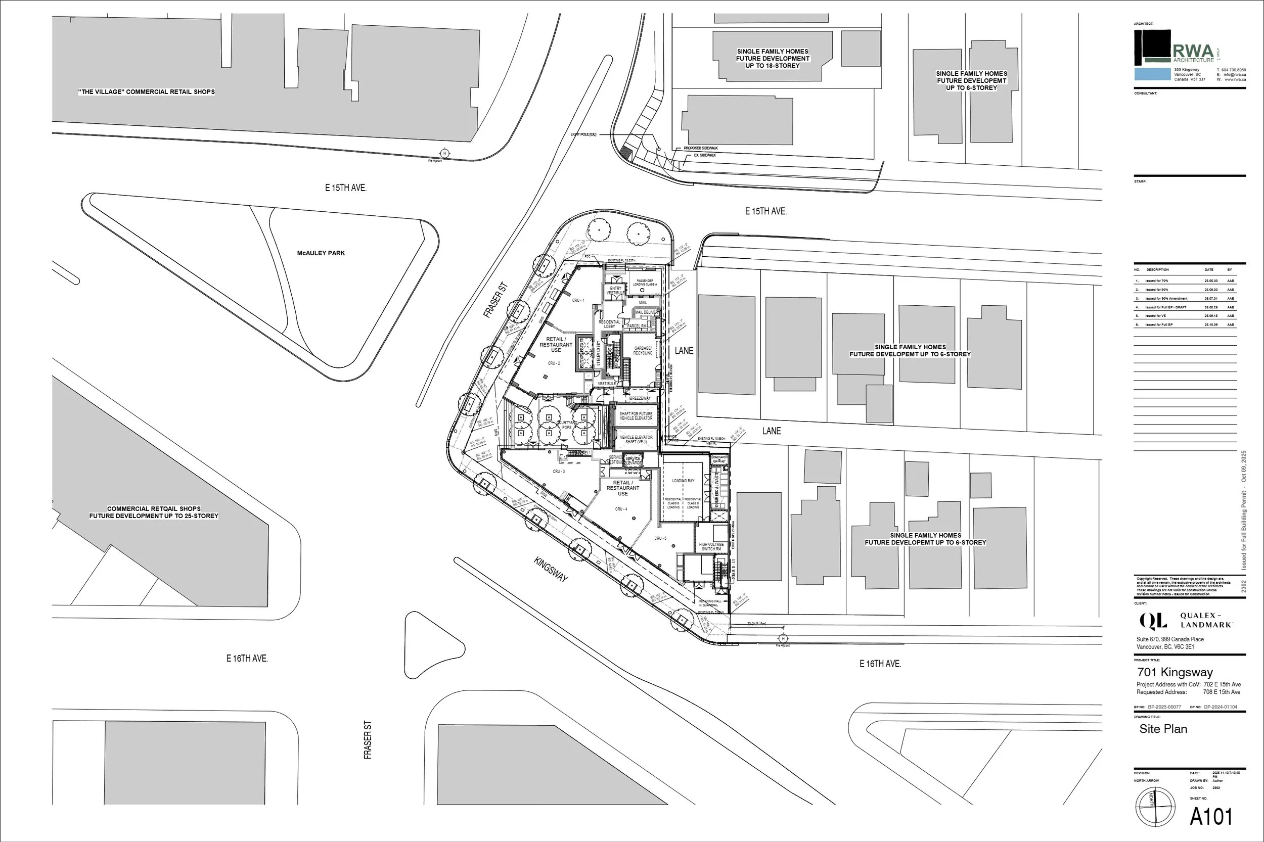
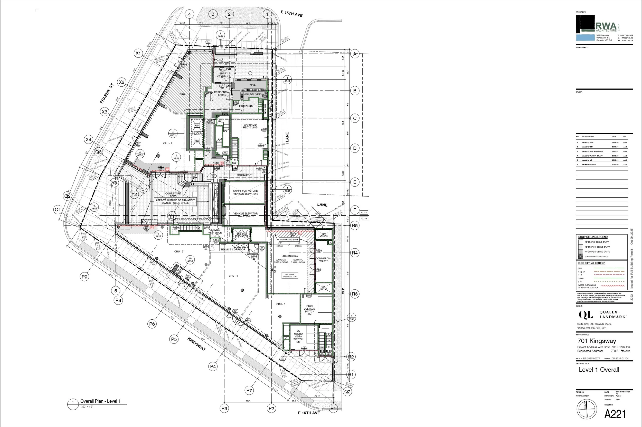
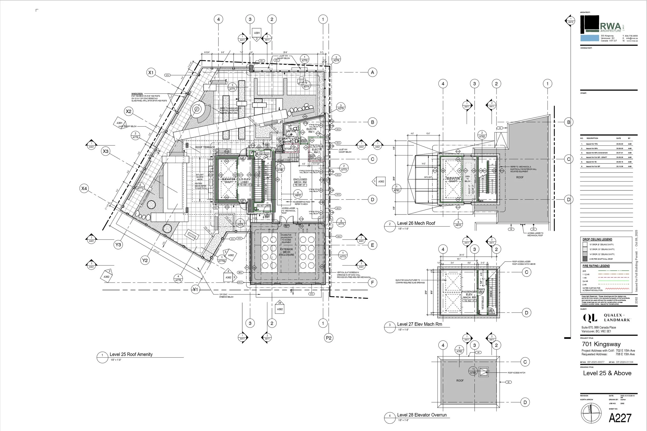
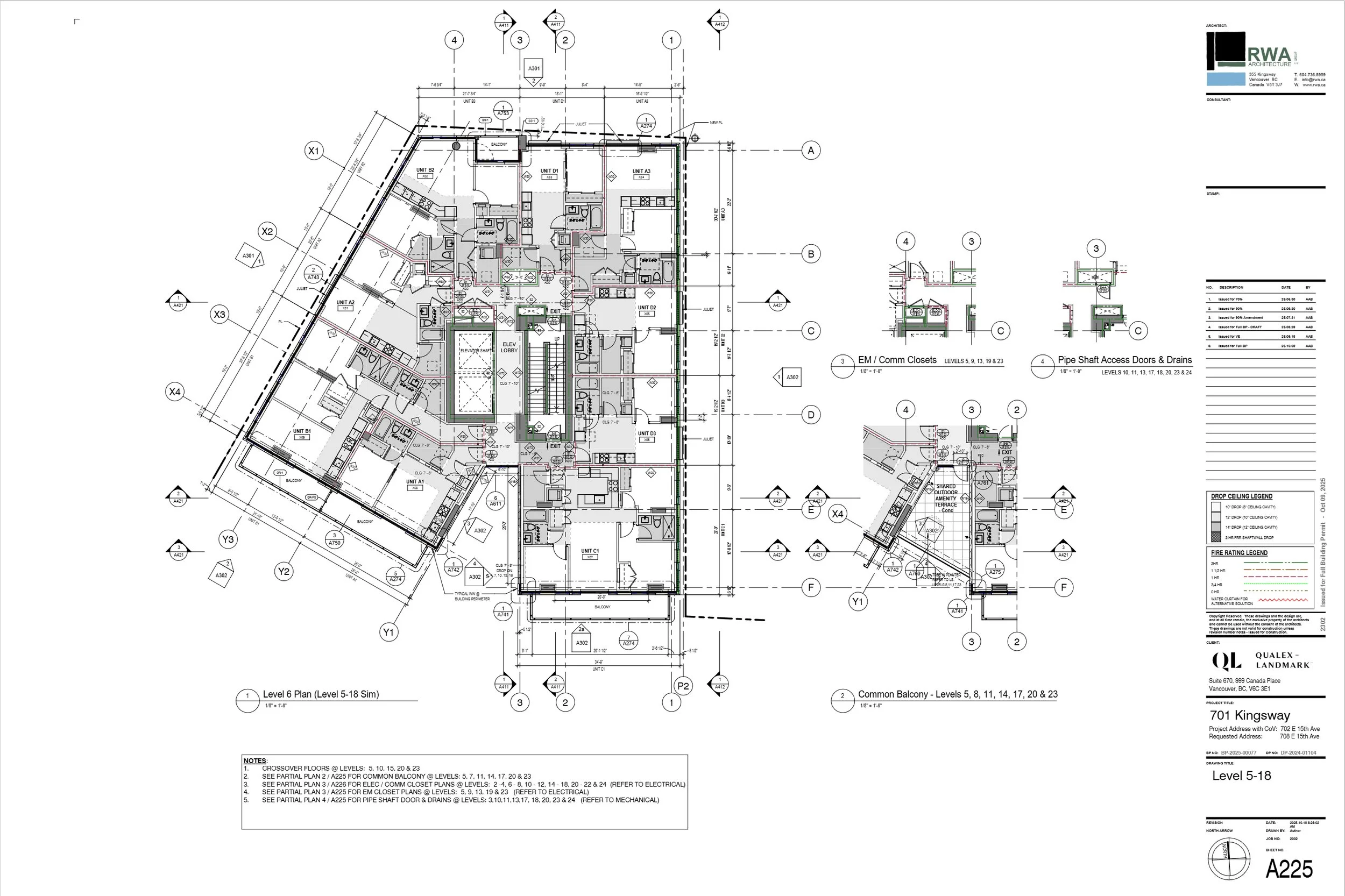
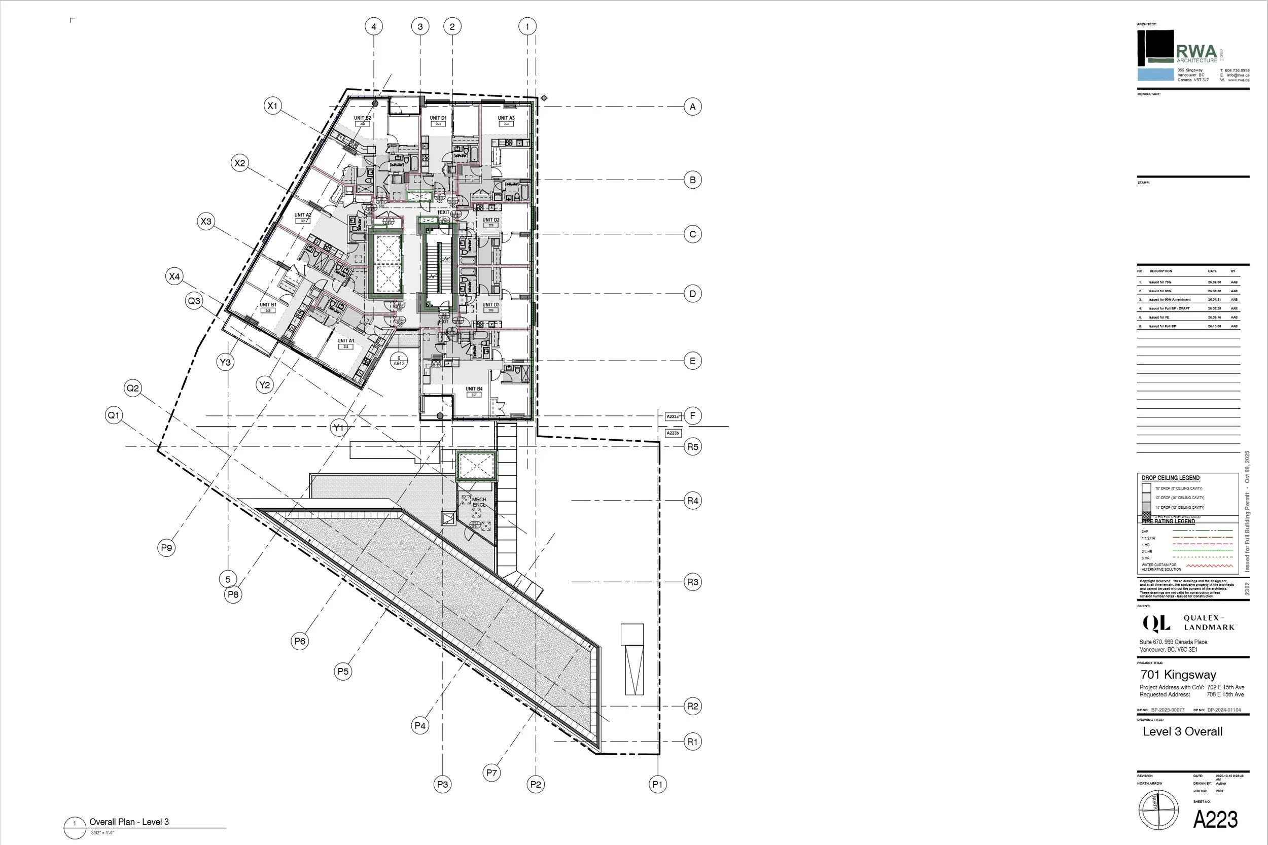
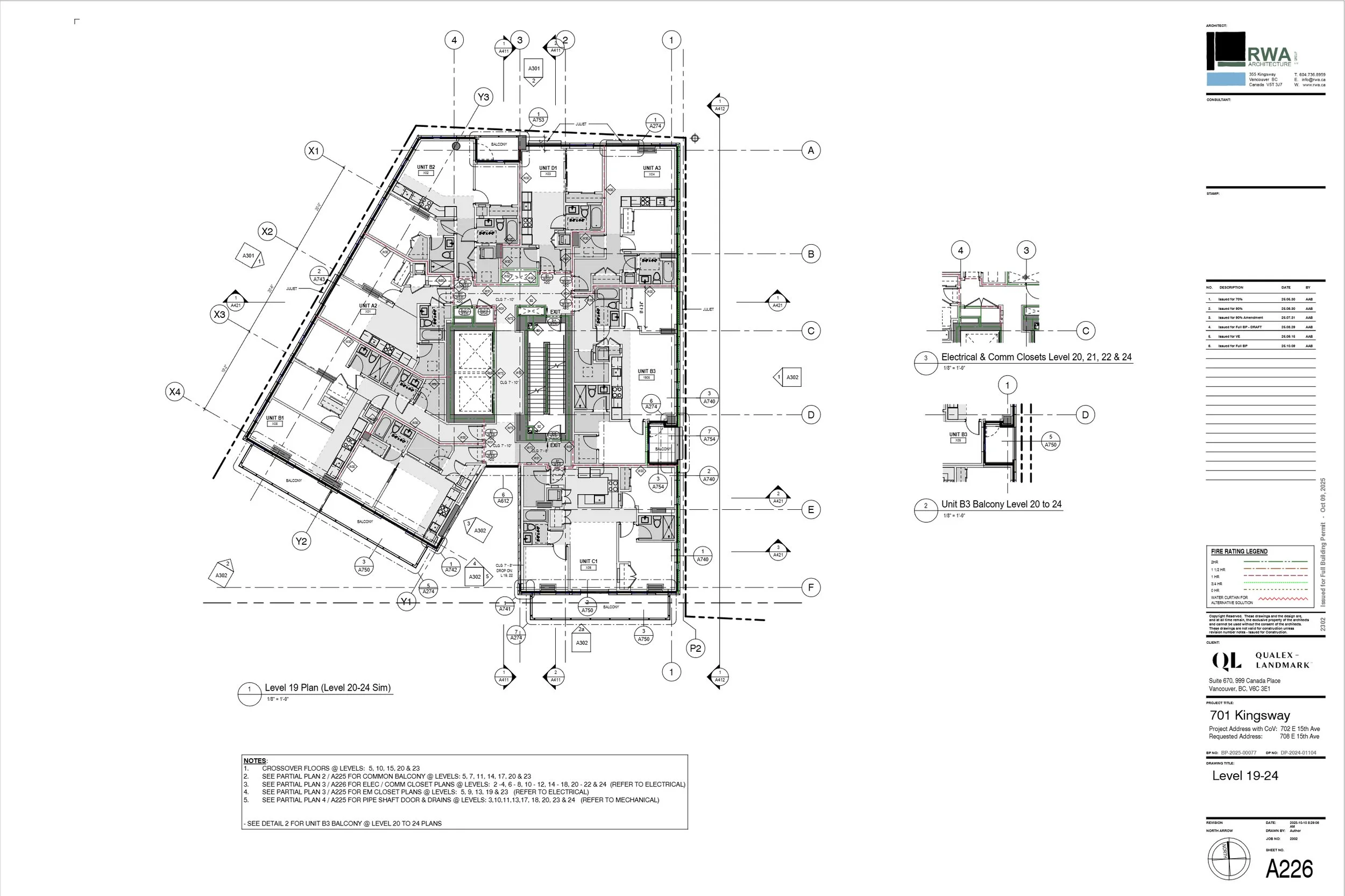
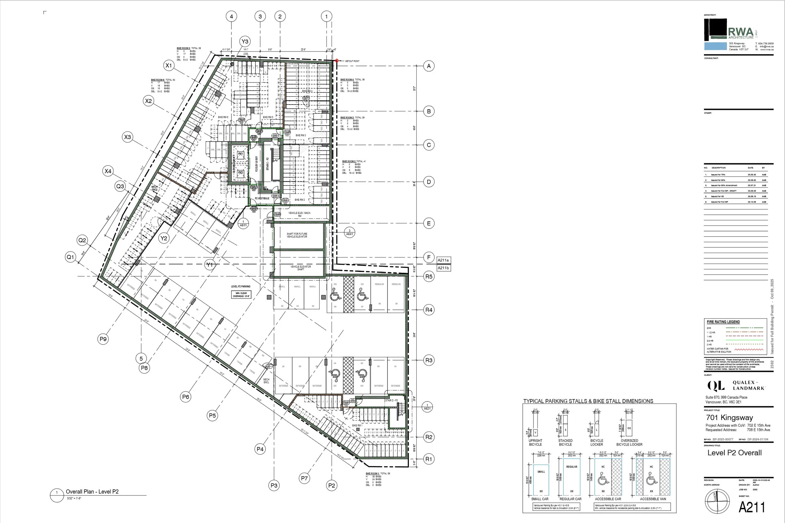
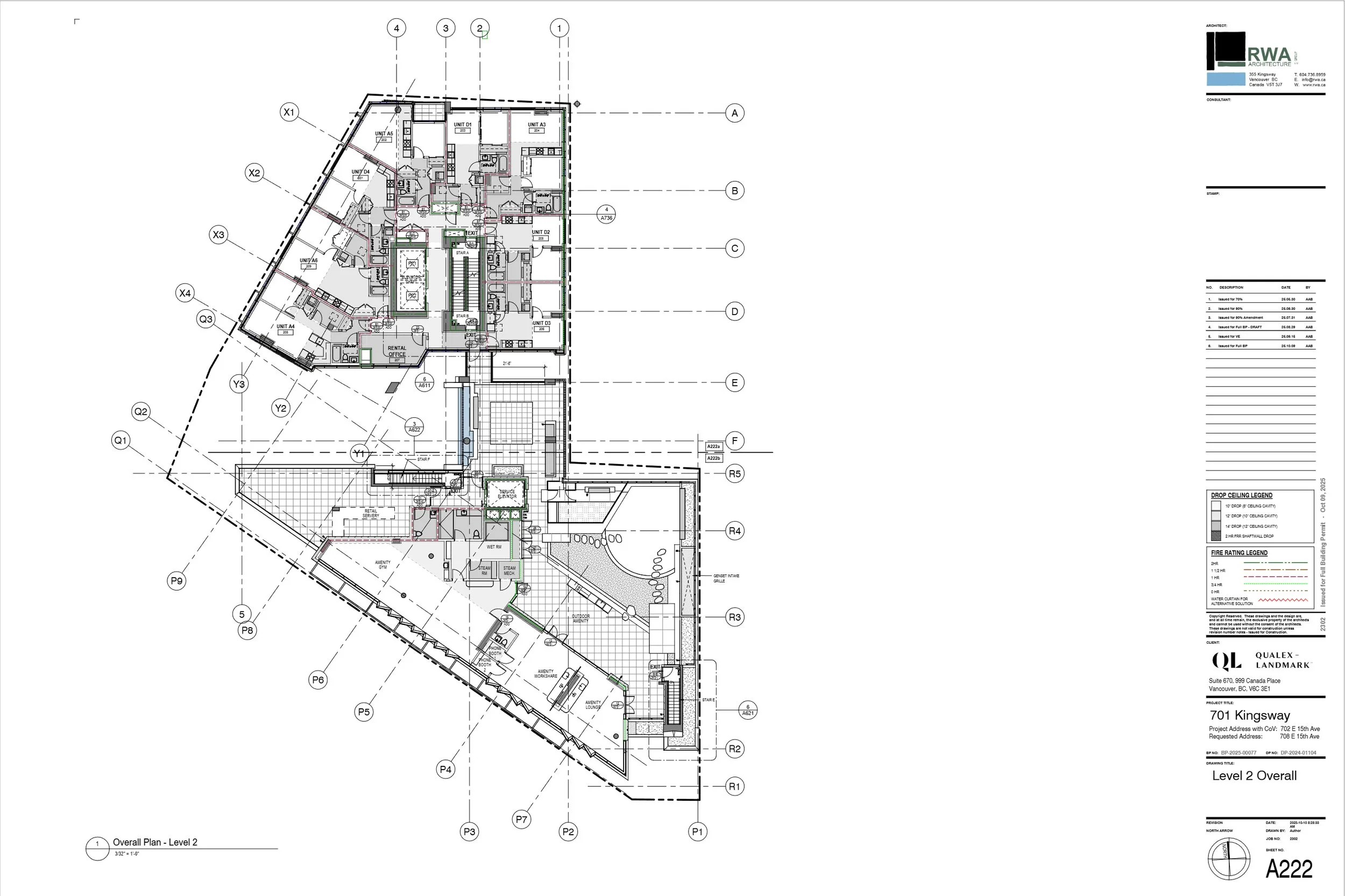
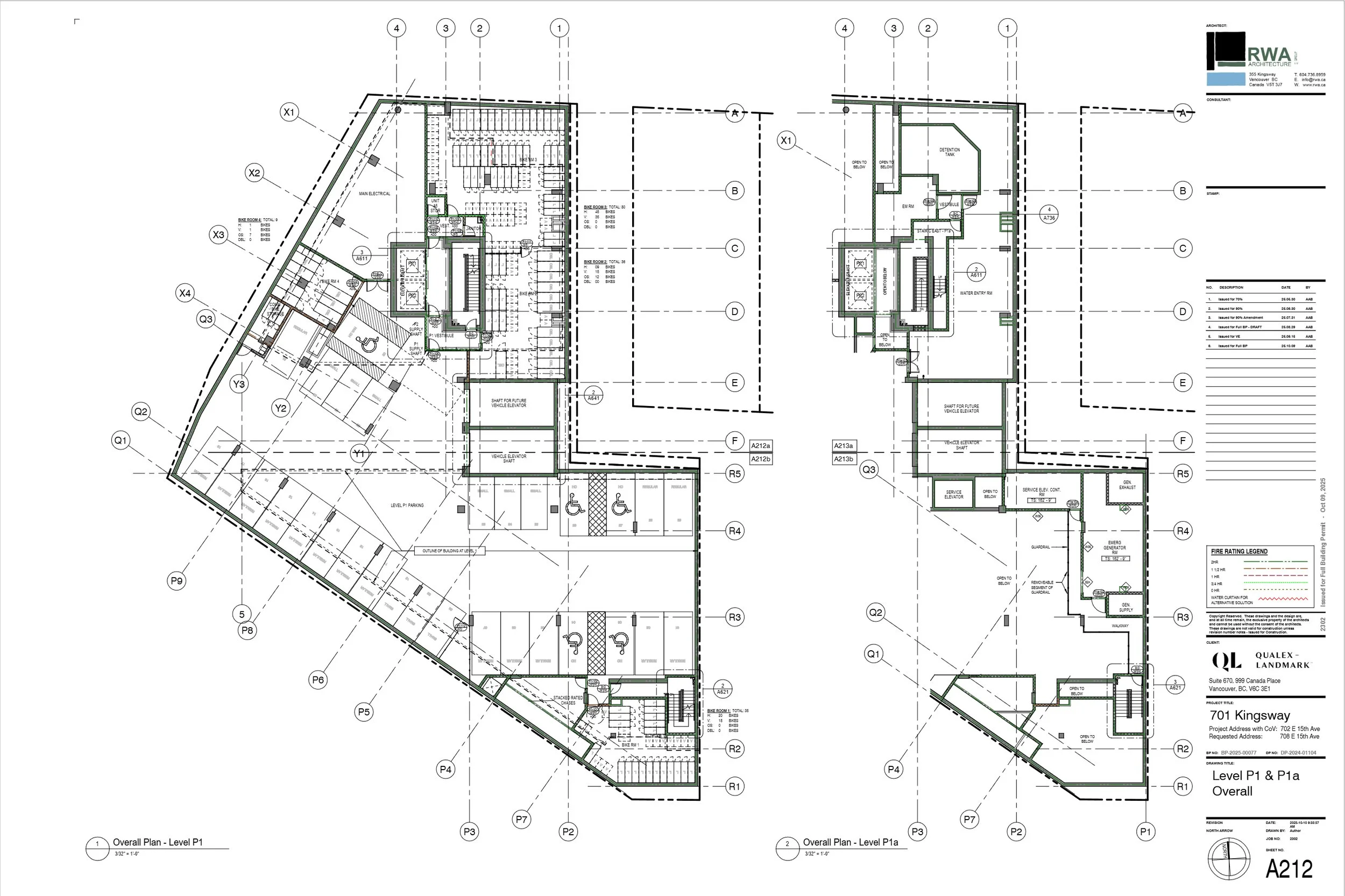
701 Kingsway is a 24 storey concrete dedicated rental tower at the corner of Kingsway and Fraser St. It comprises of 201 units, a 2-storey mixed-use pavillion, and a Privately Owned Public Space in a courtyard form. On the ground level, it features 5 Commercial Retail Units that which can be combined to form 2 large Commercial Retail Units.

This project originally started in AutoCAD and Sketchup, but was ported over to Revit. Integration, 3D modelling, designing parking and storage layout, coordinating with mechanical, electrical, structural, and sprinkler constultants, drafting plans, elevations, and sections were the main roles performed for this project.

Previous
Previous

Maplewood Gardens